• 93VOL-21122025-014515
  • 93VOL-21122025-014515-1
  • 93VOL-21122025-014515-2
Appartement 3 pièces
Location 877€ CC par mois - Appartement
93VOL 66 m² 2 Chambre(s)

Rennes (35000)

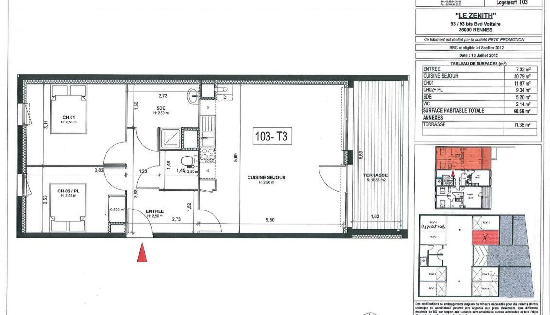
Appartement aux normes PMR de 66m² comprenant entrée, séjour avec cuisine équipée et aménagée ouvrant sur un balcon-terrasse, deux chambres avec placards, salle d’eau et des W.C.
Un garage privatif complète ce bien.
Les informations sur les risques auxquels ce bien est exposé sont disponibles sur le site Géorisques : www. georisques. gouv. fr

Diagnostic de Performance Energétique

Consommation76kWh/m².an
Emissions14kgCO2/m².an
Logement très performant
A
B
C
D
E
F
G
Logement extrêmement consommateur d’énergie
Emissions14kgCO2/m².an
Peu d’émissions de CO2
A
B
C
D
E
F
G
Emissions de CO2 très importantes

DPE réalisé après le 01/07/2021
Consommation (énergie primaire) : 76 kWh/m².an
Émissions : 14 kgCO2/m2 .an

Estimation des coûts annuels en énergie pour un usage standard : entre 56 et 810 € par an.

Plus de détails

  • Loyer hors charges (en euros) : 807
  • Charges (en euros) : 70
  • Surface habitable (en m²) : 66.06
  • Nombre de pièces : 3
  • Chauffage :
  • DPE : Version 2021
  • DPE - Valeur : 76
  • DPE - Etiquette : C
  • Etage : RDC
  • Exposition :
  • Autres:
Situer le bien

Agence Lelièvre Immobilier

L’agence Lelièvre Immobilier est le lieu de rendez-vous incontournable des acquéreurs et des vendeurs qui privilégient la qualité du…
En savoir plus

Contact

Chargement...

Biens similaires

Agence Lelièvre Immobilier